電解次氯酸鈉發生器的小知識
1.性能特點:
電解次氯酸鈉發生器在電極材料、陽陰極間距、電解面積、作了反復的研究測試,精心設計而成。電解發生所產生的次氯酸鈉具有廣譜的氧化和殺菌能力,能殺滅水中各種芽孢病毒。設備陽極使用壽命長達5-7年,電源性能可靠,耐腐蝕性能強,電解槽為鈦板及聚氯乙烯白色塑料板組成。
2.工作原理:
電解氯酸鈉發生器為組合形式,通過稀鹽水計量投加入電解槽,通過硅整流器接通陰陽極直流電源電解生成次氯酸鈉。 1公斤次氯酸鈉鹽耗:4.0-4.2;電耗:4.3-4.5KW。 在鹽水溶液中含有 Na+ 、H-等幾種離子,按照電解理論,當插入電極時,在一定的電壓下,電解質溶液由于離子的移動和電極反應,發生導電作用,這時 CL- 、OH- 等負離子向陽極移動,而Na + 、H+ 等正離子向陰極移動,并在相應的電極上發生放電,從而進行氧化還原反應,生成相應的物質。 鹽水溶液電解過程可用下列反應方程式表示: NaCl =Na + +Cl- 陽極電解作用:H2O=H+OH - 2Cl-2e— →Cl2↑ 陰極電解作用:2H- +2e— →H2↑ 在無隔膜電解裝置中,電解質和電解生成物氫氣眾溶液里向外逸出之外,其它均在一個電解槽內,由于氫氣在外逸過程中對溶液起到一定的攪拌作用,使兩極間的電解生成物發生一系列的化學反應,反應方程式如下: 2NaCl+2H2O→2NaOH+H2↑+Cl2 2NaOH+Cl2→NaClO+NaCl+H2O 在無隔膜電解鹽水,溶液的總方程式即為上列兩個反應式相加得。 NaCl+H2O+2F→NaClO+H2↑ 其中:F為法拉第電解常數,其值為26.8安培小時,或96487庫侖。
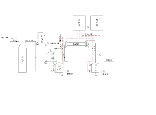
3、設備結構:
電解次氯酸鈉發生器由電解槽、硅整流電控柜、鹽溶解槽、冷卻系統及配套PUVC管道、閥門、水射器、流量計等組成。 將3~4稀鹽液加入電解槽內,接通12V直流電源,通過調節電解電流電解產生次氯酸鈉,由水射器吸收混合送出消毒,或用計量泵計量通過混合器送出消毒。
